PHILADELPHIA, PA
9,990 SF
2024
ADDITION
$5,000,000
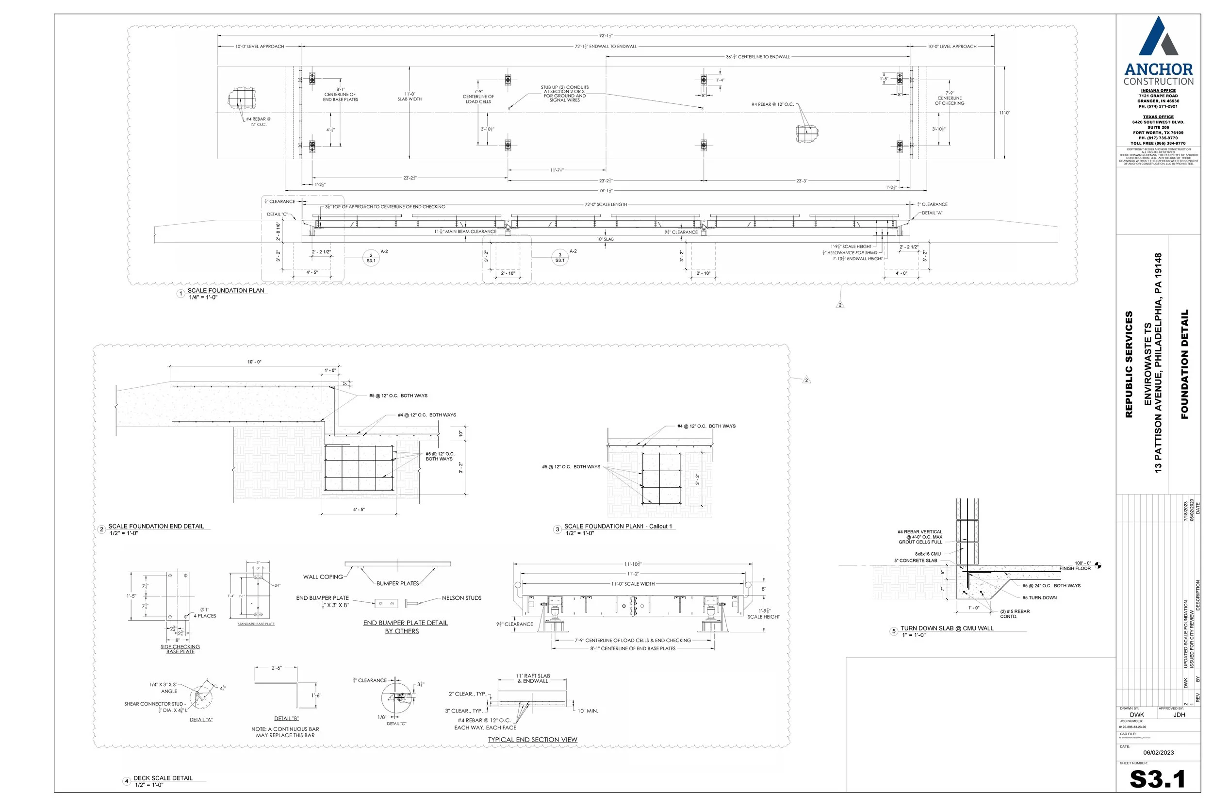
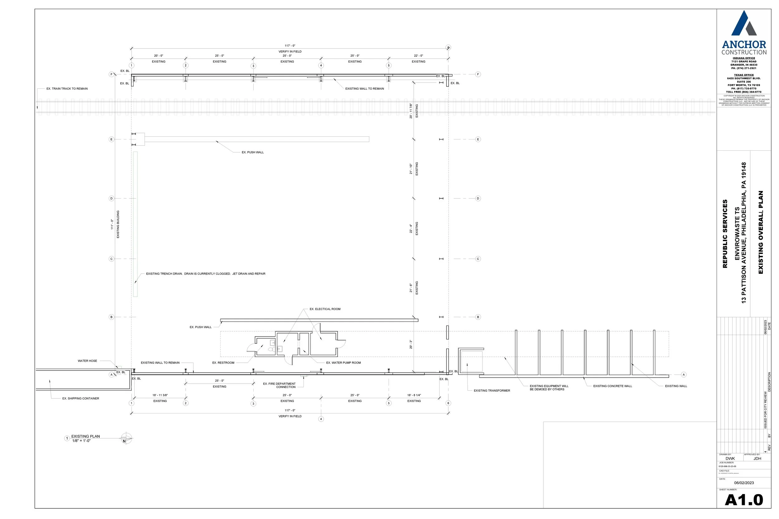
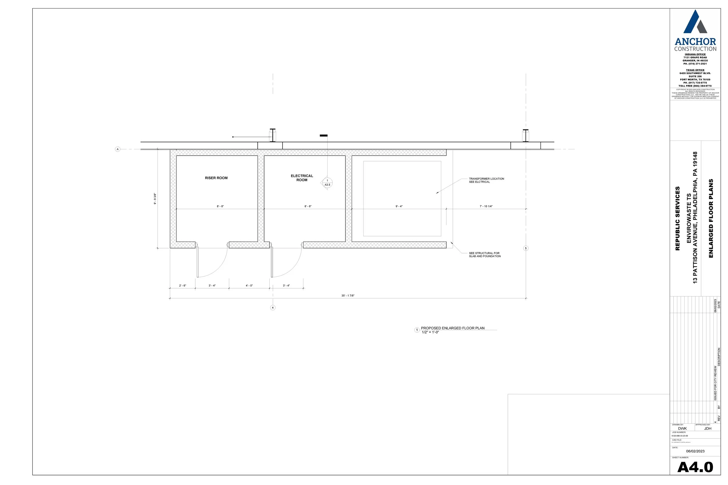
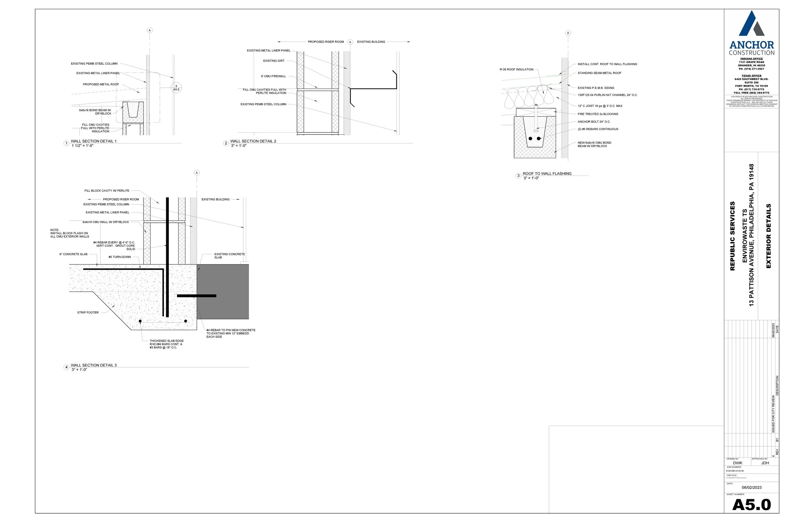
The Envirowaste TS is a transfer station used as a drop-off spot for construction waste. The waste is then loaded onto a train for final disposal. I started the project by field measuring the existing building to design the addition. These measurements were used to order a $350,000 pre-engineered building by Varco Prudent.
This project included the demolition of the existing electrical room, pump room, and restroom, and the replacement of the lights, existing metal panels, and paving around the addition. One of the challenges of this project was trying to fit the proposed columns and footers next to the existing railroad track. By working with the civil engineer, the solution was to have the footer eccentrically loaded.




























